+36 (30) 220 3030

Részletes adatok

Ingatlanok száma: 1 db

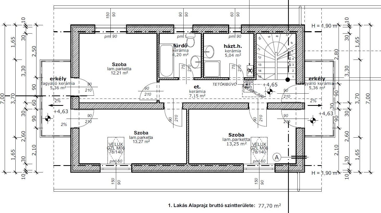
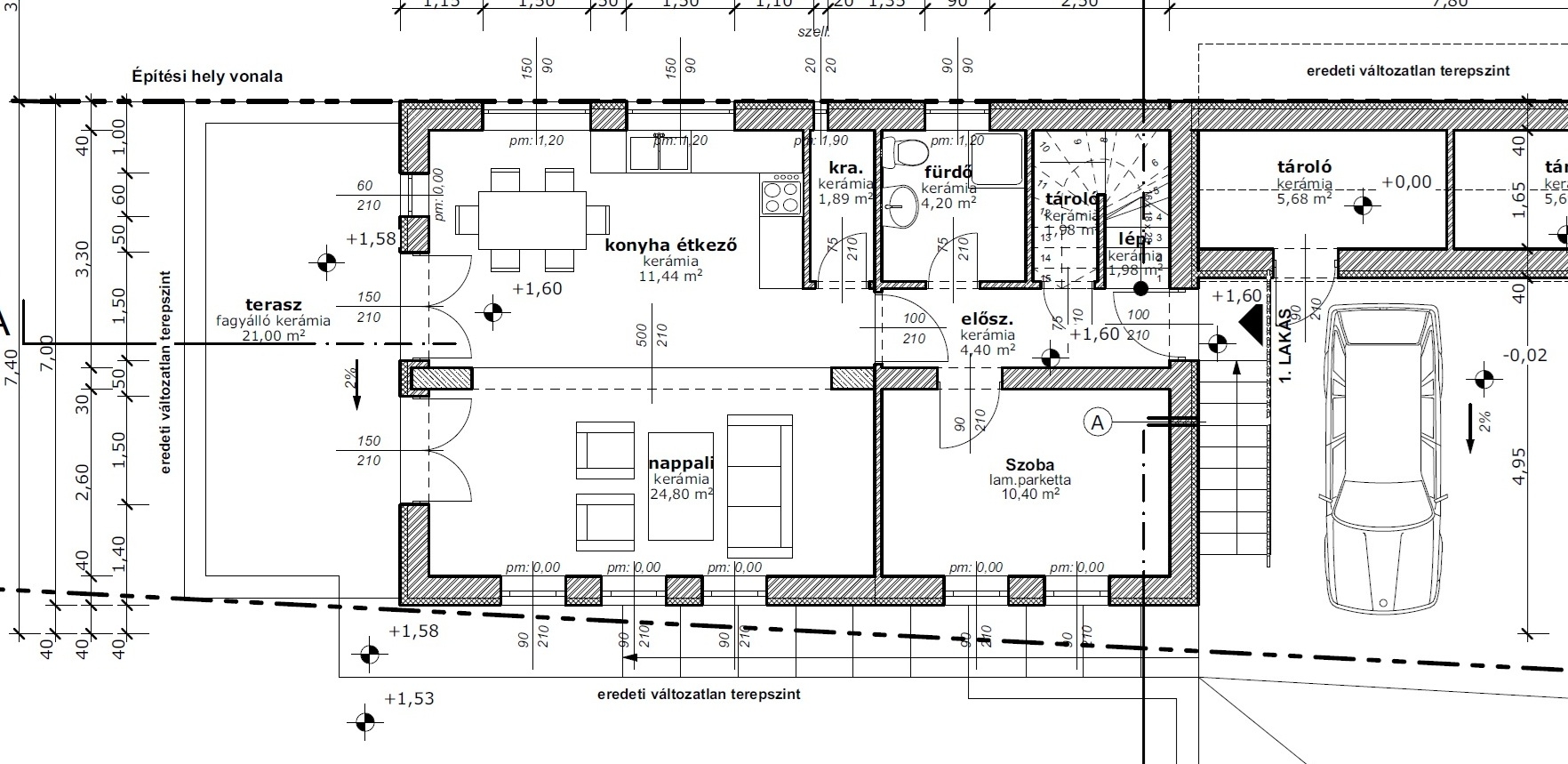
Ingatlanok mérete: 140 m2

Szobák száma: 5

Átadás ideje: 2026 IV. negyedév

Leírás

Diósd kedveld keresztneves utcák egyikében, széles utcafronttal és nagy telekrésszel rendelkező újépítésű, belső kétszintes iker 2026 év végi átadással. 

A beruházó számos referenciával rendelkezik. 

Ingatlanok

Azonosító Alapterület Építés éveEmeletTerasz/Erkély Szoba Ár CSOK PLUSZFIX 3%Részletek
344972 140 m2 2026 10 m2 5 165.000.000 Ft IGENIGENRészletek