+36 (30) 220 3030

Érd Eladó Lakás
CSOK PLUSZ FIX 3%

Érd - Eladó Lakás


Újépítésű projekt
FAGYÖNGY PROJEKT ÉRD
Alapterület
69 m2
Ár
73.238.000 Ft
Hirdetés azonosító
351070

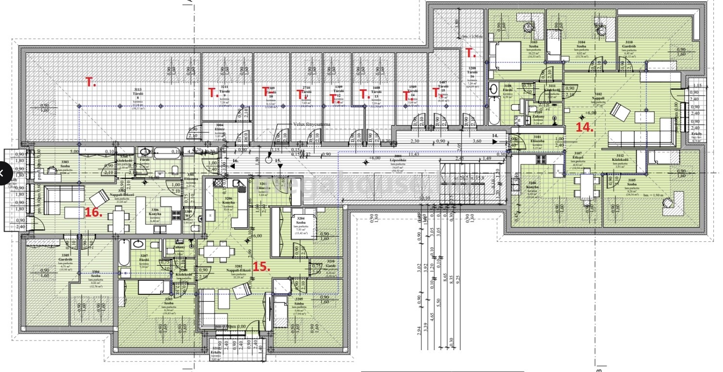
Nappali+3 szobás hangulatos tetőtéri lakás terasszal 2/16

Leírás

Fagyöngy projekt 2. emelet 16
Hangulatos 4 szobás tetőtéri lakás

Energiatakarékos, modern otthonok Érd Tisztviselőtelepen!
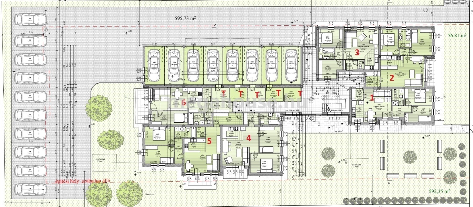
Kertvárosias környezetben,több mint 2000 nm-es telken, új építésű 16 lakásos társasházban , prémium minőségben épülő nappali + 1, 2, vagy 3 szobás lakások saját kerttel, terasszal, garázzsal vagy felszíni beállóval és tárolóval leköthetőek.

Kitűnő elosztású, napfényes, 2. emeleti (brutto 85 nm) netto 68.87 nm-es nappali+ 3 szobás lakás 7 nm-es terasszal 73.238..000 M Ft-ért megvásárolható.

- előszoba (6.25nm)
- mosdó(1.91nm)
- konyha (6.44nm)
- nappali (23.05nm)
- fürdőszoba (5.35nm)
- 3 szoba ( 12.76nm / haszn. 8.02nm, 15.95nm / haszn. 4.71nm, 11.04nm)
- terasz ( 7 nm)


A társasház hagyományos technológiával, 30cm-es téglából épül, amely 15cm dryvit szigetelés kap. A válaszfalak 10cm-es ytongból készülnek. A külső nyílászárók 3 rétegű hő és hangszigetelet műanyag nyílászárók. Belső burkolatok, szaniterek egyedi ízlés alapján kerülnek beépítésre.
Fűtésről a legkorszerűbb hőszivattyú rendszer gondoskodik, padlőfűtéssel kiegészülve, a hűtésről pedig fain coil rendszer.

Parkolni kényelmesen telken belül lehetséges.
Garázs: 3 M Ft
Felszíni beálló: 1,5 M Ft
Tároló: 2 M Ft

A lakáshoz tartozik egy beálló és egy tároló, így a teljes vételár: 76.738.000 Ft.

Lokáció kitűnő: orvosi rendelő, iskola, óvoda, buszmegálló,bevásárlási lehetőség gyorsan elérhető. Érd Aréna pár perc gyalogosan.

Számos referenciával rendelkező Beruházó építi a projektet, így garantált a megbízhatóság és a magas minőség. Az építkezés 2026. márciusában elindult, várható költözés 2027. tavasza.

Előértékesítés elindult, megtekintéssel, további kérdéssel kapcsolatban keressen bizalommal.

Kapcsolati adatok

Kósa-Bakonyvári Noémi

Kósa-Bakonyvári Noémi

Értékesítő

+36-30-852 3110

bakonyvari.noemi@madarhegyingatlan.hu

Érdeklődjön az ingatlanról, e-mailben!

Hasonló ingatlanok

Hívás